【 今だけ、2/28まで】
ご成約でエアコン最大4台分がもらえる
新春感謝祭 対象物件!
ひだまりのリビングと賢い収納の家 ≪八尾市宮町1丁目-2号地≫
ご成約でエアコン最大4台分がもらえる
新春感謝祭 対象物件!
コンセプト
-
ひだまりのリビングと賢い収納の家≪宮町1丁目-2号地≫
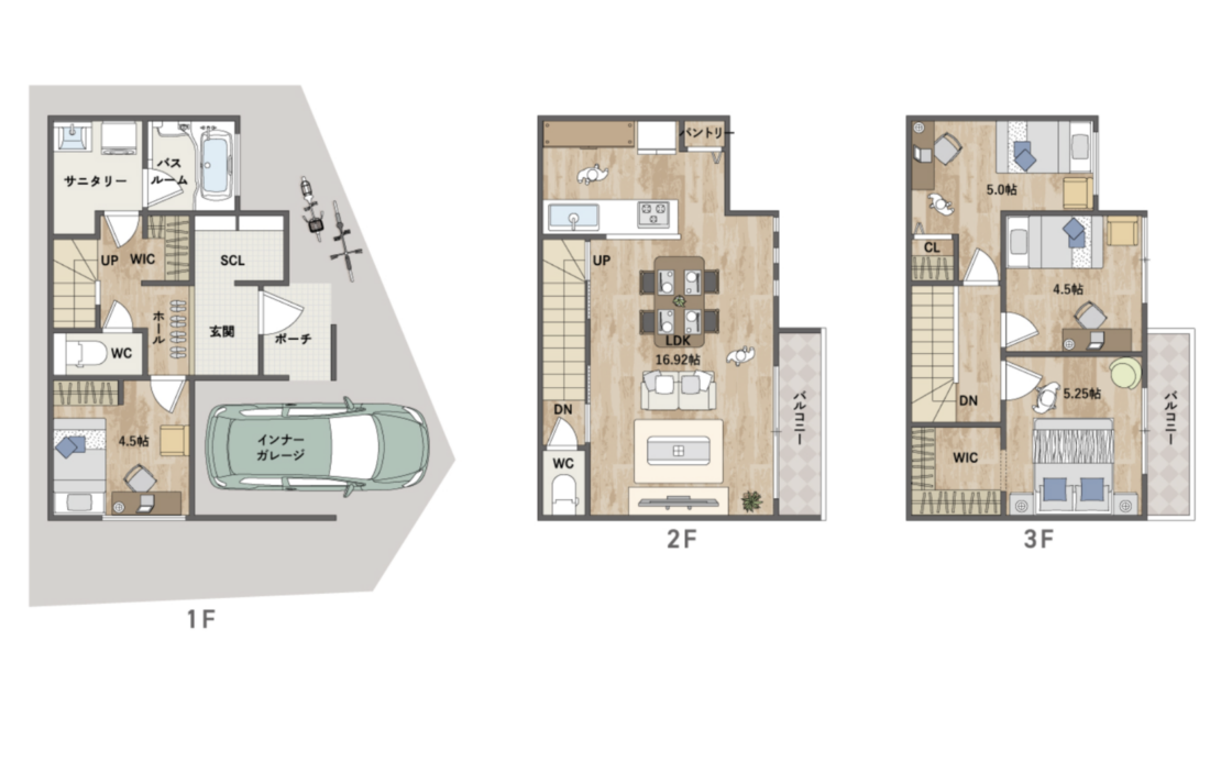
大切な車を身近に感じるインナーガレージと、玄関横の大きなシューズインクローゼットが、趣味や外出をスムーズに彩ります。2階へ上がれば、多くの窓から陽光が降り注ぐ明るいLDKが広がり、家族の笑顔を包み込みます。機能的なパントリーや各階の充実した収納、3階のプライベートな居室など、心地よさを隅々まで追求。光あふれる開放感と利便性が調和した、家族の夢を叶える住まいです。
土地面積:66.35㎡(20.07坪)
建延面積:92.73㎡(28.05坪)
-
電話で内覧・相談予約
TEL0120-08-2251
キャンペーン(エアコン 全居室分)対象物件
-
【外観】
重厚感のある黒と、洗練されたグレーの2トーンカラーを採用。異なる素材と色味を組み合わせることで建物に奥行きが生まれ、都会的でスタイリッシュな存在感を感じられます。
【リビングの間接照明】
壁一面を優雅に照らす間接照明は、空間に奥行きと上質な落ち着きをもたらします。調光機能で明るさを調整すれば、映画鑑賞や晩酌など、シーンに合わせた寛ぎの演出が可能です。
【採光性の良いLDK】
ワイドな窓と3つの縦滑り出し窓から光がたっぷり注ぐ2FのLDK。16.92帖の開放感あふれる空間を、明るい陽光が心地よく包み込みます。
-
電話で内覧・相談予約
TEL0120-08-2251
こちらは、新春感謝祭(エアコン 全居室分プレゼント)対象です
-
3階建て住宅
THREE-STORY
敷地の有効活用ができる3階建ての注文住宅。都市部ならではの施工事例です。
-
102_角地の建物
-
301_採光
-
5081_玄関収納
-
7074_間接照明
indirect lighting
ふわっとした光のグラデーションで、やわらかでくつろいだムードを。
























