【まもなく終了、2/28まで】
ご成約でエアコン最大4台分がもらえる
新春感謝祭 対象物件!
魅せる空間、整う暮らし ≪吹田市山田南≫
ご成約でエアコン最大4台分がもらえる
新春感謝祭 対象物件!
コンセプト
-
魅せる空間、整う暮らし
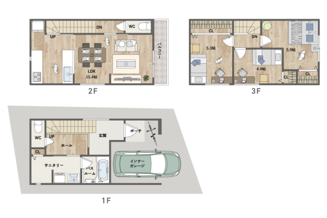
インナーガレージを備える3階建ての間取り。間接照明や鉄骨階段、折り下げ天井が洗練された空間を演出。家事ラクを極めたⅡ型キッチンや室内物干し、家族が自然と顔を合わせるリビング動線が、ゆとりある暮らしを叶える一邸です。
土地面積:58.31㎡(17.63坪)
建延面積:85.04㎡(25.72坪)
-
電話で内覧・相談予約
TEL0120-08-2251
キャンペーン(エアコン 全居室分)対象物件
-
【外観とインナーガレージ】
雨風や紫外線から大切な愛車を守るインナーガレージです。車から玄関へのアクセスが良く、雨の日の重い荷物の運び入れもスムーズに行えます。
【LDK間接照明】
明るい木目の床と間接照明、スポットライトが美しい光の陰影を演出します。スタイリッシュで雰囲気のある、上質な寛ぎのリビング空間を創り出しました。
【L字型玄関】
広々とした上がり框と1階ホールの間接照明が目を惹く、ゆとりあるL字型玄関です。ベビーカー等も置きやすく、家族やお客様を優しく迎えます。
【折り下げ天井】
空間のアクセントとなるお洒落な折り下げ天井を採用。高いデザイン性と間接照明の柔らかな光が、温かく居心地の良い雰囲気を演出します。
【ランドリーの物入れ】
1階のランドリースペースには便利な物入れを完備しました。かさばるタオルや洗剤などの日用品をそのままスッキリ収納できる実用的な設計です。
【II型キッチン】
作業スペースを広く確保できるセパレートタイプのⅡ型キッチンを採用しました。複数人でも料理がしやすく、毎日の家事効率が格段にアップします。
【抜け感のある鉄骨階段】
インテリアとしても映える、お洒落な鉄骨階段を採用しました。視線が抜けるデザインなので、空間全体に広がりと開放感をもたらしてくれます。
【リビング動線】
帰宅時に必ずLDKを通る「リビング動線」を採用しました。家族が自然と顔を合わせる機会が増え、日常のコミュニケーションが深まる間取りです。
【室内物干し(ホシ姫サマ)】
室内物干しを設置しており、時間や天候を気にせず洗濯が可能です。洗ってすぐ干せる、無駄のない家事動線が毎日の負担を大きく減らします。
【全部屋に収納あり】
全ての居室に使いやすいクローゼットを完備しています。衣類や荷物をしっかり片付けられる設計で、お部屋を常に広くきれいな状態に保てます。
-
電話で内覧・相談予約
TEL0120-08-2251
こちらは、新春感謝祭(エアコン 全居室分プレゼント)対象です
-
3階建て住宅
THREE-STORY
敷地の有効活用ができる3階建ての注文住宅。都市部ならではの施工事例です。
-
階段デザイン
SKELETON STAIRS
-
406_玄関に注目
-
601_キッチンに注目!
KITCHEN VARIATIONS
キッチンはLDKの司令塔?!
-
7074_間接照明
indirect lighting
ふわっとした光のグラデーションで、やわらかでくつろいだムードを。

































