【2026年 1月31日まで】
ご成約でエアコン最大4台分がもらえる
新春感謝祭 対象物件!
陽が差す開放的な家
ご成約でエアコン最大4台分がもらえる
新春感謝祭 対象物件!
自然光を最大限に取り込み
家全体を明るい印象に
東面からの豊かな採光が期待できるこの立地。この家はそのメリットを最大限に生かす工夫を随所に設けました。
暗くなりがちな1階部分や階段のスペースに窓を設けることで、毎日必ず通る場所を明るい印象にします。
また2階LDKの東面は、バルコニー向かって高くなる勾配天井になっており、より開放感を感じられる空間設計となっています。
勾配によってできる通常より高いスペースに窓を設け、リビングにより多く光を取り込むことができます。
コンセプト
-
外観
2階LDKの大きな窓 (向かって左) は、たっぷりとったバルコニーの奥行きの分、後ろに下げてあり、周囲を高い建物で囲われることになっても影になることがありません。
外壁は、オフホワイトの塗り調のものをベースとし、天然石の風合いのやわらかなブラウン系のアクセントを施しました。
-
リビング上部の勾配天井
LDKの上部を、バルコニーに向かってだんだん高くなる「勾配天井」にしてあるので、通常の高さの窓のさらに上の部分に、高窓を設けることができ、開放的な空間となりました。
-
ブラックウォルナット調の床材
内装は、鮮やかな差し色をあえていれない「ナチュラル・ヴィンテージ」スタイル。キッチンの面材、ダイニングチェアー、ソファで落ち着いた濃いめのグレー色が反復する、スローダウンした穏やかな空間です。
こだわりの家具を引き立てているのが、ミディアムブラウンカラーの床材。経年変化で渋みを増すタイプの床材となっており、年を重ねるごとにブラック・ウォルナットの豊かな表情を楽しめます。
土地面積 : 86.23㎡(26.08坪)
建延面積 : 95.17㎡(28.78坪)
-
電話で内覧・相談予約
TEL0120-08-2251
キャンペーン(エアコン 全居室分)対象物件
-
2F
勾配天井とワイドサイズの窓が
開放的なくつろぎ空間を演出陽が差し込みやすくなるよう、建物正面側に向かって天井を高くし、ワイドな窓とFIXの高窓を設けてあります。明るく開放的なリビングにすることができました。
2階レイアウト
4.5帖のロフトは収納スペースとして使えるだけでなく、リビングを広く見せる効果もあります。
キッチンからの眺め
休日には、大きな窓のダイニングでくつろいだ朝食を。ガーデンラウンジや別荘に来ているようなすがすがしい気分で過ごせます。経年変化で渋みを増す床材を施してあり、ブラック・ウォルナットの豊かな表情を楽しめます。
ロフトスペースとその下の洋室
ロフトスペースを設け、空間の節目をみせることで、天井が高くて開放感ある住まいであることをより実感できます。LDKと同じフロアにある居室は、憩いの場から扉一枚をへだて、気持ちを切り替えて過ごせる隠れ家のような空間です。
LDKに隣接した約4.5帖の洋室の
上部をロフトにしています。
壁クロスと照明を施してあり、用途としては、季節用品などを置いておくただの物置きにとどまらず、寝そべって過ごせるリスニングルーム、子供の遊び場など、クリエイティブなスポットとすることも可能です。
LDKに隣接させたバルコニー
ワイドサイズの窓の向こうが、東向き・約6.5帖のバルコニー。風通しがよく、ブランチにもうってつけです。「お天気のいい休日は、朝食をゆっくり外でとりながら過ごす」という選択肢が現実になります。
周囲からの目線も考慮した
アーバンスタイルのバルコニーリビングに隣接した広めのバルコニーは、アウトドアリビングとしてテントを張って過ごしてみたり、人を招いてBBQなどを楽しむこともできます。
手すり壁の高さを一部分、身長くらいの高いものにしてあり、周囲の目を気にせずくつろいで過ごせます。照明があり、防水コンセントも設けてあるため、夕暮れ時や就寝前も思い思いに過ごせます。
階段ホールにも窓
2階階段ホールに大きな窓を設けているので、暗くなりがちな階段スペースを明るくすることができます。
ゆったりと広い洗面脱衣室
洗面室はスペースを広く設けたので、大きめの収納家具なども置くことができます。
-
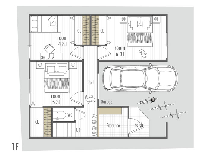
1F
窓の位置を巧みに設けることで
明るい廊下・エントランスに1階レイアウト
1階部分は随所に窓を設け、暗い印象にならないよう工夫しました。廊下に設けたFIX窓からは東面から採光ができ、階段上の窓からも採光ができるのでエントランスが明るい印象になります。玄関も広めにスペースを取り、忙しい朝など動線もスムーズになります。
こだわりのインナーガレージ
インナースペースは、玄関ポーチ部分に斜めのカットを入れ、動線・サイズ感・デザインなど工夫がいっぱいです。
天然石調の外壁材に加え、古木調の外壁材を奥の部分に施し、素材感を楽しめる空間となりました。穏やかな表情と窓からもれる光で、帰宅時にもやさしく迎えてくれます。
インナーガレージは入り口を広めにすることで、車の出し入れがしやすくなります。
玄関より各部屋へ行く廊下にも、みずみずしい肌触りの床材を
毎日のように通る空間ですので、家のベースのコーディネートをチェックしてみましょう。マットで細かな凸凹のある壁クロスと、経年変化で表情を変えるブラック・ウォルナット調の床材。シンプルですが味わいのある仕様です。
特に、薄く挽いた無垢材の質感が魅力のフローリングは、地味ながら暮らしの中で存在感を増し続けることでしょう。床のみずみずしい肌触りは、誰もが毎日楽しめる、上質な暮らしの大切な要素です。
FIX窓を設けた廊下
階部分は随所に窓を設け、暗い印象にならないよう工夫しています。
玄関より1Fの3つの居室へつながるホール部分には固定窓を設けてあり、東面からの自然光に満たされ、晴れやかな気持ちで行き来ができます。また、カースペースの様子を覗くことができます。
玄関ホール
人が並んで靴をはけるくらいにゆとりをもたせた玄関ホール。忙しい朝のお出かけの支度の際も余裕ができます。
ガラススリットのある玄関扉
野趣あふれるラスティック・オークタイプの玄関扉が選ばれています。
ガラススリット部のあるデザインですが、断熱性能を損なわない特殊な加工がされています。-

階段上の窓からの採光
2階のホールに設けた窓から、1階の玄関ホールにも明るい光が差し込みます。
-

階段下収納
階段下を有効に活用し収納スペースを設けました。(1階南側洋室)
-

収納が充実
全居室、収納スペースを確保しスッキリと広く使って頂けます。(1階東側洋室)
-
-
電話で内覧・相談予約
TEL0120-08-2251
こちらは、新春感謝祭(エアコン 全居室分プレゼント)対象です
-
ナチュラル
NATURAL STYLES
木のぬくもりを感じさせたりグリーンが目に映ったりで、ほっと落ち着く空間。
-
104_勾配天井
SLOPED CEILING
明るさや開放感が得られるだけでなく「デザイン住宅」らしさも加わります。




















